已到最后一张图片了。

重新播放

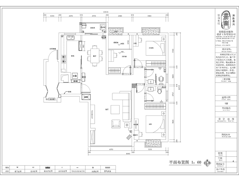
云沙诗意15栋2106

家装案例设计师: 2015/5/21 0:36:58
支持键盘键翻阅图片
|列表查看
  • 云沙诗意15栋2106

  • 云沙诗意15栋2106

案例说明

         名称:云沙诗意15B栋2106室
         户型:平层三室两厅
         价格:15—18万
         设计风格:简欧风情
         设计师:张莉

平面布局

 

 

点击关闭
  • 嘉兴装饰在线客服 嘉兴装饰在线客服

版权所有:衡阳嘉兴装饰工程有限公司  湘ICP备15005524号-1  技术支持:索天信息

公司地址:湖南省衡阳市珠晖区东风南路48号龙腾星河1栋二单元308 联系电话:0734-8366778  18673441233