已到最后一张图片了。

重新播放

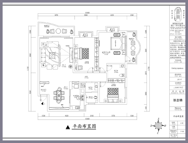
华泽钱江苑B栋610室

家装案例设计师: 2015/5/20 23:30:39
支持键盘键翻阅图片
|列表查看
  • 华泽钱江苑B栋610室

  • 华泽钱江苑B栋610室

  • 华泽钱江苑B栋610室

  • 华泽钱江苑B栋610室

案例说明

名称:华泽钱江苑B栋610室

户型:平层三室二厅150㎡
价格:0
设计风格:欧式

设计师:张志锦

平面布局

点击关闭
  • 嘉兴装饰在线客服 嘉兴装饰在线客服

版权所有:衡阳嘉兴装饰工程有限公司  湘ICP备15005524号-1  技术支持:索天信息

公司地址:湖南省衡阳市珠晖区东风南路48号龙腾星河1栋二单元308 联系电话:0734-8366778  18673441233